Scroll Down for More Images
(Back)
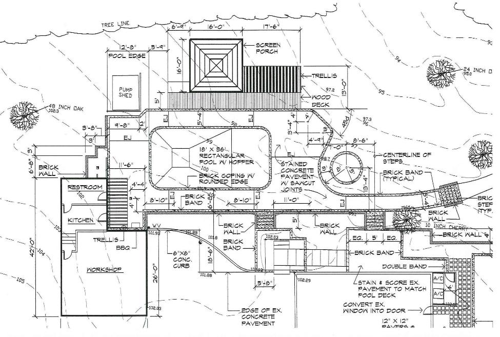
Layout Plan
Planting Plan
(Back)